Williamstown Solar

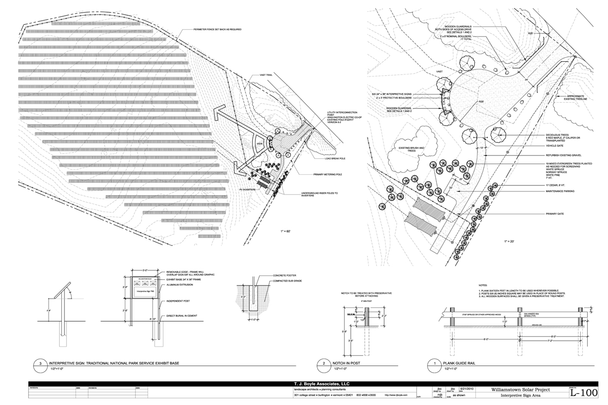
A proposed 2.1 megawatt solar farm located on a 16-acre site in Williamstown, Vermont, this project would include approximately 8,948 solar panels, making it the largest solar farm ever proposed in the state of Vermont. T. J. Boyle Associates provided aesthetic analysis and simulation services, as well as conceptual designs for an interpretive area.

Visual Analysis Project Galleries


301 College Street, Burlington, VT 05401 802.658.3555 [info@tjboyle.com] [fb]